Terreno na Rua Lago Paranoá, Caminho dos Lagos
Tamanho: 13 x 25
Nascente
Obra Iniciada
Casa projetada pelo Arquiteto Cris Harley
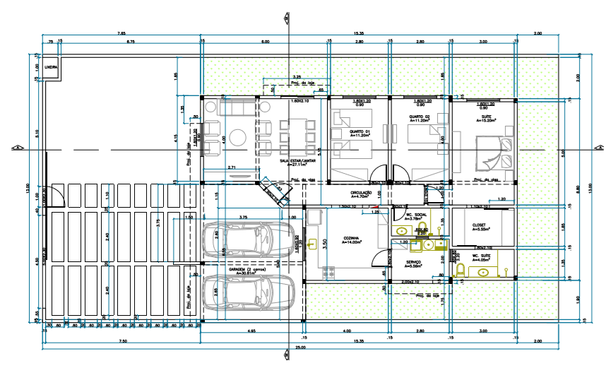
Casa 3/4, sendo 1 suíte com Closet e Jardim de Inverno
Garagem para até 4 carros e área para piscina
Murado
SAPATA DA CASA EXECUTADA COM TODAS AS FERRAGENS DAS COLUNAS.
Valor do Terreno – R$ 140 mil
Contato: (81) 9.9998-5360. Falar com André.









Tem escritura? Pago 100 mil